- Jim Tacy Sr, REALTOR ®
- Tropic Shores Realty
- Hernando, Hillsborough, Pasco, Pinellas County Homes for Sale
- 352.556.4875
- 352.556.4875
- jtacy2003@gmail.com
Share this property:
Contact Jim Tacy Sr
Schedule A Showing
Request more information
- Home
- Property Search
- Search results
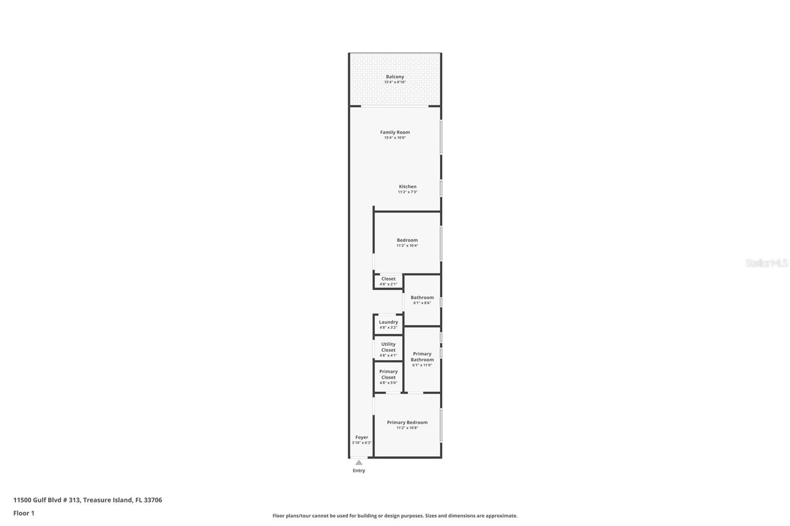
- 11500 Gulf Boulevard 313, TREASURE ISLAND, FL 33706
Property Photos

- MLS#: TB8449033 ( Residential )
- Street Address: 11500 Gulf Boulevard 313
- Viewed: 4
- Price: $1,079,000
- Price sqft: $1,069
- Waterfront: No
- Year Built: 2023
- Bldg sqft: 1009
- Bedrooms: 2
- Total Baths: 2
- Full Baths: 2
- Days On Market: 4
- Additional Information
- Geolocation: 27.7735 / -82.7743
- County: PINELLAS
- City: TREASURE ISLAND
- Zipcode: 33706
- Subdivision: Ocean Club Treasure Island A R

- DMCA Notice
-
DescriptionHigh occupancy (83% average 2025 ytd) & income generating nightly rental this is your chance to own a luxury hotel suite at ocean club on treasure island. This 2 bedroom, 2 bathroom residence with just over 1000 heated square feet is your chance to own a prime piece of paradise with superior views, privacy, and value. Positioned on the 3rd floor, this corner unit delivers unobstructed gulf and beach views. Awesome direct sightlines to treasure islands expansive beach. This is a rare opportunity to own one of the corner units with extra windows and more natural light. This is also the only unit in the entire building with shutters installed in the living room area for added privacy. Located in the heart of treasure island beach trail, ocean club provides direct access to biking, walking, and beach activities, all without crossing a single street. The amenities are second to none, featuring an expansive resort pool and oversized hot tub, a state of the art fitness center, a private sandy beach area and volleyball court, a rooftop terrace and bar area that functions as a beachfront casual food and sports bar, ample covered and open parking with a garage spot included with purchase, a 24 hour concierge, and an onsite proven rental and housekeeping management team. This turnkey unit comes fully furnished, including impact glass windows, a deep private terrace, premium appliances, full size washer & dryer, kitchenware, and stylish decor everything you need for a seamless transition into beachfront ownership. Enjoy up to 30 consecutive days of personal use as a unit owner! Unlike many beachfront rental properties, ocean clubs onsite rental program offers industry leading flexibility, giving owners the best of both worlds. Lucrative rental income potential and generous personal use allowances. Pet friendly and rental friendly, you can choose any rental management company, but we highly recommend the onsite team, boasting one of the lowest on site management fees in the area at just 20%
Property Location and Similar Properties
All
Similar
Features
Appliances
- Dishwasher
- Dryer
- Electric Water Heater
- Microwave
- Range
- Refrigerator
- Washer
Association Amenities
- Elevator(s)
- Fitness Center
- Pool
- Spa/Hot Tub
Home Owners Association Fee
- 792.00
Home Owners Association Fee Includes
- Cable TV
- Insurance
- Internet
- Maintenance Structure
- Maintenance Grounds
- Maintenance
- Pool
- Sewer
- Trash
- Water
Association Name
- Phillip Dvorak/Condo Management Plus
Association Phone
- 727-800-6101
Carport Spaces
- 0.00
Close Date
- 0000-00-00
Cooling
- Central Air
Country
- US
Covered Spaces
- 0.00
Exterior Features
- Balcony
- Lighting
- Sliding Doors
Flooring
- Tile
Furnished
- Furnished
Garage Spaces
- 1.00
Heating
- Central
Insurance Expense
- 0.00
Interior Features
- Kitchen/Family Room Combo
- Open Floorplan
- Window Treatments
Legal Description
- OCEAN CLUB TREASURE ISLAND
- A RESORT CONDO UNIT 313
Levels
- One
Living Area
- 1009.00
Area Major
- 33706 - Pass a Grille Bch/St Pete Bch/Treasure Isl
Net Operating Income
- 0.00
Occupant Type
- Tenant
Open Parking Spaces
- 0.00
Other Expense
- 0.00
Parcel Number
- 23-31-15-63726-000-0313
Parking Features
- Basement
Pets Allowed
- Dogs OK
- Yes
Property Type
- Residential
Roof
- Other
Sewer
- Public Sewer
Tax Year
- 2024
Township
- 31
Unit Number
- 313
Utilities
- Public
View
- Water
Virtual Tour Url
- https://www.zillow.com/view-imx/f7673ec1-9136-4b66-9432-0527308cc9b2?wl=true&setAttribution=mls&initialViewType=pano
Water Source
- Public
Year Built
- 2023
Listing Data ©2025 Greater Tampa Association of REALTORS®
Listings provided courtesy of The Hernando County Association of Realtors MLS.
The information provided by this website is for the personal, non-commercial use of consumers and may not be used for any purpose other than to identify prospective properties consumers may be interested in purchasing.Display of MLS data is usually deemed reliable but is NOT guaranteed accurate.
Datafeed Last updated on November 23, 2025 @ 12:00 am
©2006-2025 brokerIDXsites.com - https://brokerIDXsites.com