- Jim Tacy Sr, REALTOR ®
- Tropic Shores Realty
- Hernando, Hillsborough, Pasco, Pinellas County Homes for Sale
- 352.556.4875
- 352.556.4875
- jtacy2003@gmail.com
Share this property:
Contact Jim Tacy Sr
Schedule A Showing
Request more information
- Home
- Property Search
- Search results
- 2915 Harbor View Avenue, TAMPA, FL 33611
Active
Property Photos

- MLS#: TB8458302 ( Residential )
- Street Address: 2915 Harbor View Avenue
- Viewed: 132
- Price: $3,800,000
- Price sqft: $658
- Waterfront: No
- Year Built: 2024
- Bldg sqft: 5774
- Bedrooms: 4
- Total Baths: 6
- Full Baths: 4
- 1/2 Baths: 2
- Garage / Parking Spaces: 2
- Days On Market: 65
- Additional Information
- Geolocation: 27.9026 / -82.491
- County: HILLSBOROUGH
- City: TAMPA
- Zipcode: 33611
- Subdivision: Harbor View
- Elementary School: Roosevelt
- Middle School: Coleman
- High School: Plant
- Provided by: SMITH & ASSOCIATES REAL ESTATE
- Contact: Stephen Gay
- 813-839-3800

- DMCA Notice
-
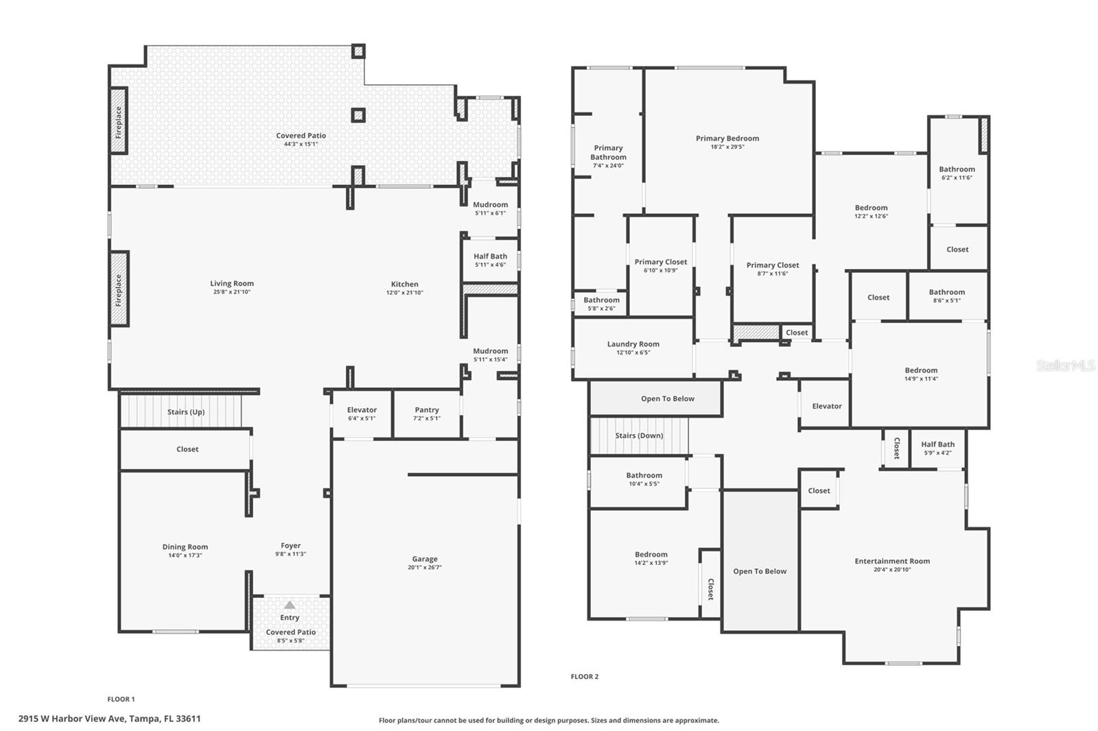
DescriptionIdeally positioned on a picturesque, sidewalk lined street in the heart of Bayshore Beautiful, just moments from iconic Bayshore Boulevard, this nearly new custom residence by Taralon Homes delivers refined architectural presence and elevated living throughout. A pavered circular drive, travertine entry steps, and classic Bevolo gas lanterns create a striking arrival. Inside, a grand foyer with soaring ceilings and statement Restoration Hardware lighting introduces an open, light filled floor plan with 7.5" naturally aged Medallion wide plank flooring, 8' solid core interior doors, and level five smooth drywall. Formal dining with custom built in cabinetry and a full wet bar featuring Sub Zero refrigeration and a wine fridge anchors the main level alongside an expansive great room. This room is highlighted by a marble clad electric fireplace wall and wall length sliding glass doors that open seamlessly to the outdoors. The chefs kitchen pairs sculptural design with exceptional function, featuring a dramatic marble waterfall island, dual Thermador refrigerators, a six burner Thermador gas range with custom hood, galley sink with on demand filtered water, under cabinet lighting, and built in refrigeration drawers. A secondary wet bar with wine refrigeration and ice machine connects directly to the outdoor bar, while a fully equipped scullery with marble counters, additional dishwasher, and walk in pantry provides discreet convenience. A custom drop zone with built ins sits just off the garage. Indoor outdoor living is effortless at the covered lanai with travertine flooring, drop down screens, recessed lighting, speakers, and a fully appointed alfresco kitchen, overlooking the heated saltwater pool and spa framed by lush landscaping and hardscape. Upstairs, a flexible media lounge with custom cabinetry and wet bar complements generously sized secondary suites with custom closets and marble finished en suite baths. The primary suite is a serene retreat with coffered ceilings, dual custom walk in closets, and a spa inspired bath featuring a soaking tub, oversized walk in shower with jewel showerheads, marble vanities with makeup station, towel warmer, and Toto fixtures. Additional highlights include elevator access to all levels, impact rated windows and doors, spray foam attic insulation, two natural gas wall mounted tankless water heaters, pre wired low voltage security and surround sound, Lutron lighting, integrated speakers, owned security cameras, a pool bath with marble waterfall vanity, and a spacious laundry room with built ins. The two car garage with lift offers epoxy flooring, rear yard access, and integrated irrigation controls. Enhanced by a Generac whole home generator and meticulous attention to detail, this exceptional residence offers timeless luxury just steps from Tampas most celebrated waterfront promenade.
Property Location and Similar Properties
All
Similar
Features
Appliances
- Bar Fridge
- Dishwasher
- Disposal
- Gas Water Heater
- Ice Maker
- Kitchen Reverse Osmosis System
- Microwave
- Range
- Range Hood
- Refrigerator
- Wine Refrigerator
Home Owners Association Fee
- 0.00
Builder Model
- Riviera
Builder Name
- Taralon Homes
Carport Spaces
- 0.00
Close Date
- 0000-00-00
Cooling
- Central Air
Country
- US
Covered Spaces
- 0.00
Exterior Features
- Dog Run
- Lighting
- Outdoor Grill
- Private Yard
- Sidewalk
- Sliding Doors
Fencing
- Vinyl
Flooring
- Ceramic Tile
- Hardwood
- Marble
Furnished
- Unfurnished
Garage Spaces
- 2.00
Heating
- Central
- Electric
- Natural Gas
High School
- Plant-HB
Insurance Expense
- 0.00
Interior Features
- Built-in Features
- Ceiling Fans(s)
- Coffered Ceiling(s)
- Crown Molding
- Dumbwaiter
- Eat-in Kitchen
- Elevator
- High Ceilings
- Kitchen/Family Room Combo
- PrimaryBedroom Upstairs
- Solid Wood Cabinets
- Stone Counters
- Tray Ceiling(s)
- Walk-In Closet(s)
- Wet Bar
Legal Description
- HARBOR VIEW LOT 9
Levels
- Two
Living Area
- 4558.00
Lot Features
- Flood Insurance Required
- FloodZone
- City Limits
- In County
- Sidewalk
- Paved
Middle School
- Coleman-HB
Area Major
- 33611 - Tampa
Net Operating Income
- 0.00
Occupant Type
- Owner
Open Parking Spaces
- 0.00
Other Expense
- 0.00
Parcel Number
- A-03-30-18-3W1-000000-00009.0
Parking Features
- Circular Driveway
- Driveway
- Garage Door Opener
- Other
Pets Allowed
- Yes
Pool Features
- Auto Cleaner
- Deck
- Fiber Optic Lighting
- Gunite
- Heated
- In Ground
- Lighting
- Salt Water
Property Type
- Residential
Roof
- Shingle
School Elementary
- Roosevelt-HB
Sewer
- Public Sewer
Style
- Contemporary
Tax Year
- 2024
Township
- 30
Utilities
- BB/HS Internet Available
- Cable Available
- Electricity Connected
- Natural Gas Connected
- Sewer Connected
- Water Connected
Views
- 132
Virtual Tour Url
- https://www.zillow.com/view-imx/84b1143e-0419-4588-
Water Source
- Public
Year Built
- 2024
Zoning Code
- RS-60
Listing Data ©2026 Greater Tampa Association of REALTORS®
Listings provided courtesy of The Hernando County Association of Realtors MLS.
The information provided by this website is for the personal, non-commercial use of consumers and may not be used for any purpose other than to identify prospective properties consumers may be interested in purchasing.Display of MLS data is usually deemed reliable but is NOT guaranteed accurate.
Datafeed Last updated on February 26, 2026 @ 12:00 am
©2006-2026 brokerIDXsites.com - https://brokerIDXsites.com